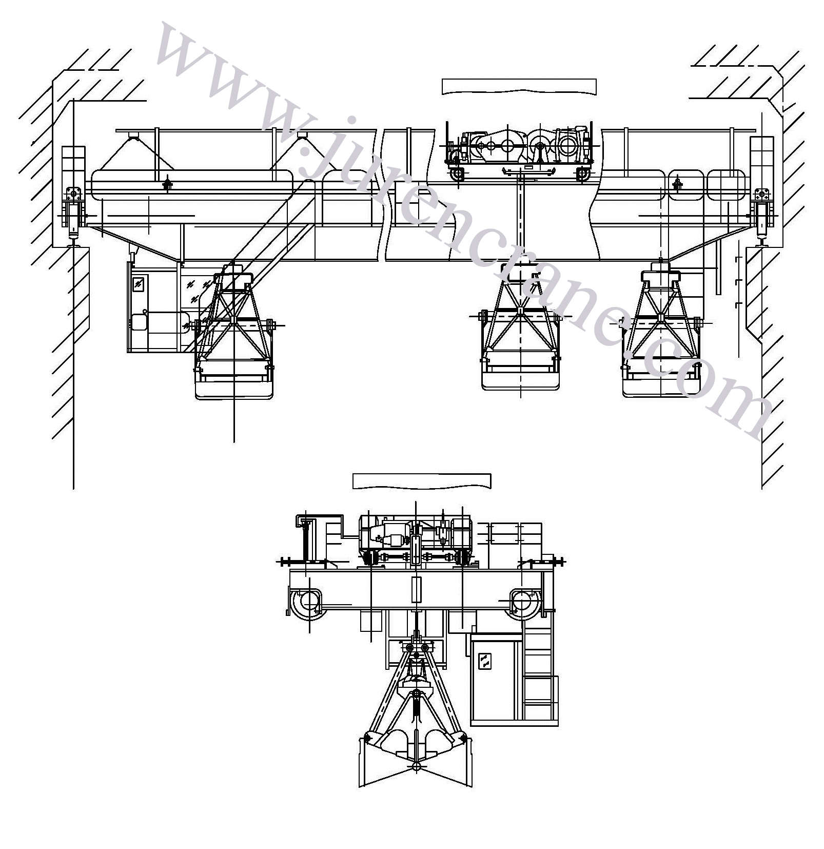
QZ model double beam overhead crane with grab bucket
QZ model double beam overhead crane with grab bucket is matched with grab bucket, it is using to handle sand, stone, steel scrap and other loose materials, the lifting capacity from 3ton to 30ton, the span from 7.5m to 35m, the lifting height from 3ton to 30ton.
This type overhead crane is widly used in steel mills, mines, forest farms, coal mines, ports, scrap acquisition stations, garbage dumps, biological power plants and other industries.

Contact: Jason
Phone: 0086-373-8609988
Tel: 0086-373-8609988
Email: info@jurencrane.com
Add: Weizhuang Industrial Park, Changyuan County, Xinxiang City, Henan, China